您好,欢迎访问宣汉豪煊建材有限公司信息发布平台 登录 注册 关于我们
楼盘信息 您现在的位置:首页>楼盘信息

鹭湖宫19区长河湾

时间:2025-07-30       联 系 人: 邓容



价格:9814元/㎡

开盘:2025年10月10日

交房:2025年05月30日

户型:三室(1),四室(5)

地址:[ 温江 - 国色天乡 ] 万春镇白鹭路333号

联系人:邓容

联系电话:13981988257


基本信息:

楼盘名称: 鹭湖宫19区长河湾 期房在售
楼盘特点: 项目在建 绕城外 大平层 旅游地产 厨卫全明
参考单价: 住宅 9814 元/㎡
楼盘总价: 住宅 118-220 万元/套
物业类型: 住宅
开发商: 成都置凯实业有限公司
区域位置: 绕城外- 温江- 国色天乡
楼盘地址: 万春镇白鹭路333号

销售信息

最低首付: 月供 (按最低首付,20年等额本息)
楼盘户型: 3室户型 (1) , 4室户型 (5) [查看全部户型]
最新开盘: 2020-10-21
交房时间: 2022年12月
售楼处地址: 成都市温江区天乡路二段98附近

小区情况

建筑类型: 高层
产权年限: 住宅:70年
容积率: 住宅:2.1
绿化率: 30%
规划户数: 418户
楼层状况: 9#26F、10#12#27F、11#30F、13#21F,2T4、2T2、3T3
工程进度: 在建中,竣工时间:2022-09-30
物业管理费: 住宅:2.2元/m²/月
物业公司: 成都合达联行物业服务有限公司
车位数: 957
车位比: 1:2.3

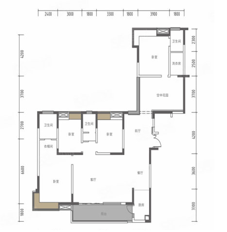
4室2厅2卫

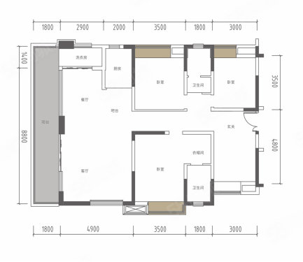
4室2厅3卫

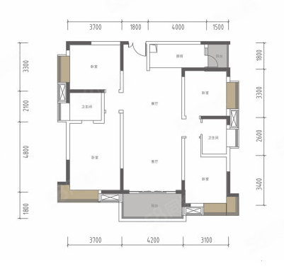
4室2厅2卫

4室2厅2卫